



Mit dem Neubau des Ronald McDonald Hauses der McDonalds Kinderhilfe Stiftung entstand auf dem Gelände der Kinderklinik Sankt Augustin eine optimistische „Landmark“. Die Baukörperskulptur im Grünen wird Eltern von schwer kranken Kindern, die sich in stationärer Behandlung befinden, ein Zuhause auf Zeit und Kontakt zu gleichermaßen betroffenen Eltern bieten. Entgegen der Erwartungshaltung gegenüber pragmatischer und funktionaler Architektur im Krankenhausumfeld, präsentiert sich das Gebäude mit angenehmer Leichtigkeit und spielerischer Ausstrahlung.

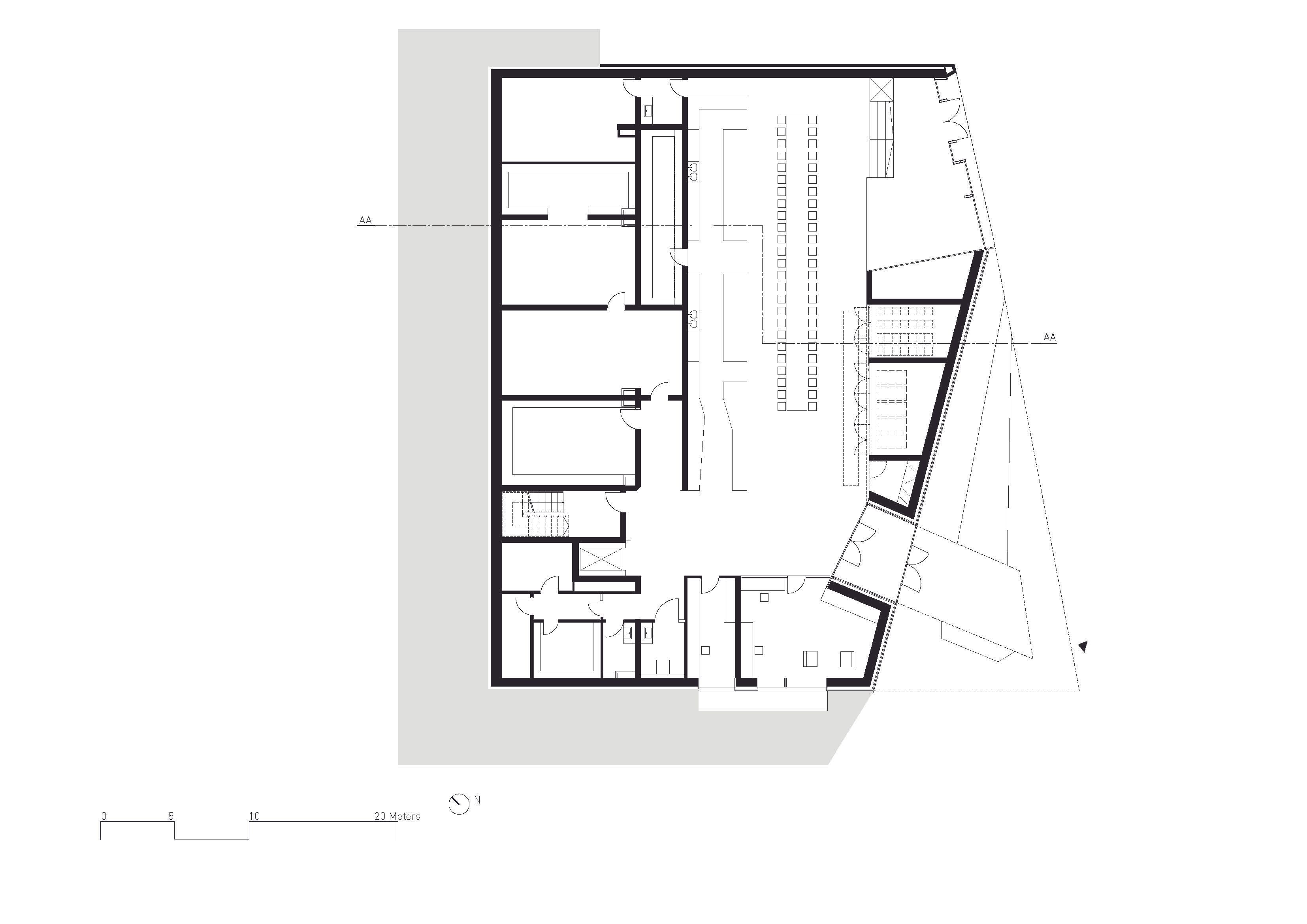
Direkt am Eingang werden die ankommenden Familien von der dort untergebrachten Hausleitung in Empfang genommen und erhalten einen einfachen und orientierenden Überblick über das Haus. Das Herz der Gemeinschaftsbereiche ist der offene Küchenbereich und die zentral angeordnete lange Tafel, die als Zentrum des gesamten Hauses dient. Da das gemeinsame Gespräch beim Kochen und Essen häufig die erste Gelegenheit zur Kontaktaufnahme zwischen Eltern bedeutet und durch den Austausch nicht selten das Gefühl entsteht, mit den eigenen Problemen nicht alleine zu sein, nimmt dieser Begegnungsraum einen besonderen Platz ein.
In diesem Mittelpunkt beginnt auch eine langgestreckte Raumrampe mit großen Außenterrasse, auf der sich weitere Bereiche zur Gemeinschaftsnutzung befinden: ein Ort für Spiel und Spaß für die Kinder, eine kleine Bühne für Veranstaltungen, Sitz- und Liegelandschaften, sowie leicht geschützte Bereiche mit Arbeitstischen auch für Eltern. Über die ansteigende Raumspirale erreicht man den ersten Stock, in dem sich weitere, akustisch geschützte, Aufenthaltsbereiche und Besprechungsräume befinden. Von hier aus kann man wiederum in den Außenraum treten, da das Gebäude an dieser Stelle in den vorhandenen Hang geschoben ist und dadurch einen ebenerdigen Ausgang bietet.
Über den Gemeinschaftsbereichen erhebt sich schließlich ein Zimmerturm, der über einen zentralen Aufzug und zwei Treppenhäuser erschlossen wird. Auf dem Weg zu den Zimmern erlauben die Flurbereiche schöne Ausblicke über Sankt Augustin. In den oberen Geschossen wird der Blick in die grüne Umgebung im Umfeld des Hauses gelenkt.
Der scheinbar gebogene Baukörper bettet sich in die topografisch interessante Umgebung ein und findet darin seine Balance. Dabei spielt die Ausrichtung der sehr unterschiedlichen Seiten des Hauses eine besondere Rolle.
Alle 25 Zimmer sind auf den Fernblick in die umliegenden Felder Sankt Augustins ausgerichtet. Jedes Zimmer verfügt über ein Sitzfenster, das den Blick in diese Richtung und auf den Sonnenuntergang ermöglicht.





Der Bau als Ganzes wirkt dabei weniger wie ein konventionelles Haus, als eine ikonografische Formskulptur. Eine Metallfassade, die sich kontinuierlich um den Baukörper wickelt, bildet den Hintergrund für horizontal langgestreckte Fensterbänder. Es entsteht das Bild eines insgesamt sehr abstrakten, hellen und formbaren Baukörpers, der seine genaue Lage in der Umgebung zu suchen scheint und im Ausblick in das umgebende Grün seine Balance findet. Ein Ausdruck für Momente der Leichtigkeit und Zuversicht in der schweren Zeit seiner Bewohner.
Stefanie Götz, Raphael Hemmer