



2007, Bardesign of the Year 2007, Mixology Awards, Bar Convent Berlin
2006, World Hotel Award 2006, category True Stylish: Hotel Q
2005, “Hospitality Design Award 2005”
Travel and Leisure Award 2005
ArTravel Award 2005, Winner
2004, Hans Schaefers Preis 2004
Honor Award, AIA, Los Angeles
Record Interiors Award for Excellence in Design
Hotels sollen in der Ferne zum Zuhause werden. Für kurze Zeit ermöglichen sie es den Besuchern außerdem, in eine andere Welt einzutauchen, neue Identitäten und zukünftige Rituale zu (er-)leben. Hotels können alte Gewohnheiten hinterfragen und neue inspirieren.

In den vergangenen zehn Jahren hat sich eine neue Art von Hotel entwickelt, die Gästen eine andere Erfahrung bietet als standardisierte Hotelketten oder prgmaische Touristenunterkünfte. Diese "Designhotels" zielen darauf ab, einzigartig, authentisch und lokal verankert zu sein, und dem modernen kosmopolitischen Reisenden ein einzigartiges Erlebnis zu bieten.
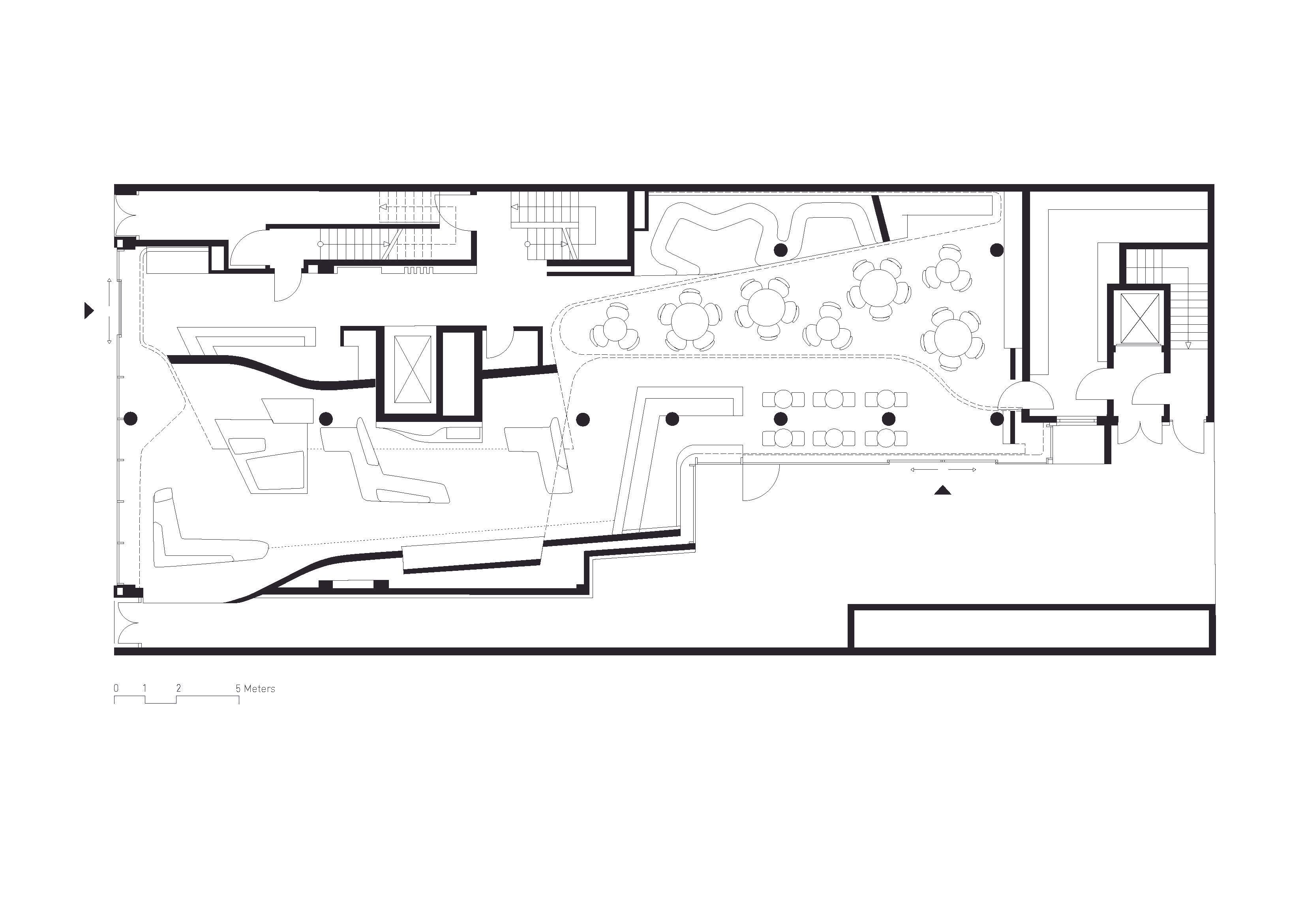
Um die Ecke des belebten Kurfürstendamms, in der Knesebeckstraße, entwarf GRAFT eine Hotellandschaft, die den typologisch vertrauten Raumkanon in Frage stellt und stattdessen eine gefaltete topografische Struktur vorschlägt. Einer tektonischen Logik folgend, entsteht eine horizontale Landschaft aus gefalteten und verzerrten Objekten, die wiederum hybride Zonen mit doppelter Funktion erzeugt. Ein schräger Abschnitt kann sowohl als Trennwand als auch als Möbelstück dienen. Der aus dem Boden aufsteigende Abschnitt ist sowohl eine Fläche für die Zirkulation als auch Teil eines Raumes. Statt den Raum in mehrere getrennte Bereiche zu unterteilen, schafft der Fluss dieser internen Landschaft einen offenen, miteinander verbundenen Innenraum.


Die Topografie des Entwurfs maximiert die Vielseitigkeit des Programms und schafft einen kontinuierlichen Fluss von Form und Raum. Die räumliche Erzählung weicht von konventionellen Wahrnehmungserfahrungen ab und ermöglicht mehrdeutige Lesarten des Raums.




Das Design von GRAFT lädt die Bewohner ein, zum Teilnehmer dieser Landschaft zu werden, ihre Interaktion mit Architektur und Möbeln anzupassen. Betten gehen nahtlos in Badewannen über und bieten sich wie heiße Quellen an, die aus dem Boden sprudeln.

To achieve the distinctive forms of the design and fulfill the necessary functional requirements, the architects searched intensively for an appropriate material before settling on Marmoleum Real 3127, a product by the Forbo Flooring GmbH.


Das Hotel wurde im April 2004 eröffnet und umfasst eine Lobby, Lounge und Spa, 72 Zimmer, vier Studios und ein Penthouse.
Wolfgang Grenz
Johannes Jakubeit, Michael Rapp, Sascha Krückeberg, Stephanie Bünau, Leo Kocan, Lennart Wiechell, Sven Fuchs, Nikolas Krause, Helge Lezius