



Die erste Reaktion von GRAFT auf die einzigartigen Qualitäten des Tsindanali-Anwesens – seine kulturelle Bedeutung und seine atemberaubende Naturkulisse – prägte den gesamten Entwurfsansatz.



Durch die harmonische Einbettung eines neuen Baukörpers in die bestehenden Strukturen wird der Lauf der Zeit an diesem besonderen Ort eindrucksvoll verdeutlicht.
Während ein Großteil der bestehenden Einrichtungen unter Berücksichtigung der einzigartigen und weitläufigen Gewölbe des Kellers umgestaltet wird, bietet der neue Baukörper atemberaubende Ausblicke über das Anwesen und die dahinterliegenden Kaukasusberge.

GRAFT setzte intuitiv leichte, flache, horizontale Formen ein, die an eine Fassade erinnern und dem Park einen zentralen Mittelpunkt verleihen.
Das bestehende Mauerwerk wird restauriert. Der neue Baukörper wird mit warmen, natürlichen Holzschindeln verkleidet, die sich harmonisch in die bereits vorhandenen Erdtöne einfügen.
Die historische Bausubstanz des Tsindanali-Anwesens wird durch die Integration verschiedener öffentlicher Funktionen in die bestehende Struktur, die so weit wie möglich erhalten werden soll, revitalisiert. Die neue Symbiose wird das Anwesen rund um die Uhr und das ganze Jahr über mit Leben und Aktivität erfüllen.
Einige der Gebäude des Anwesens werden für die zukünftige Weinproduktion erhalten bleiben.

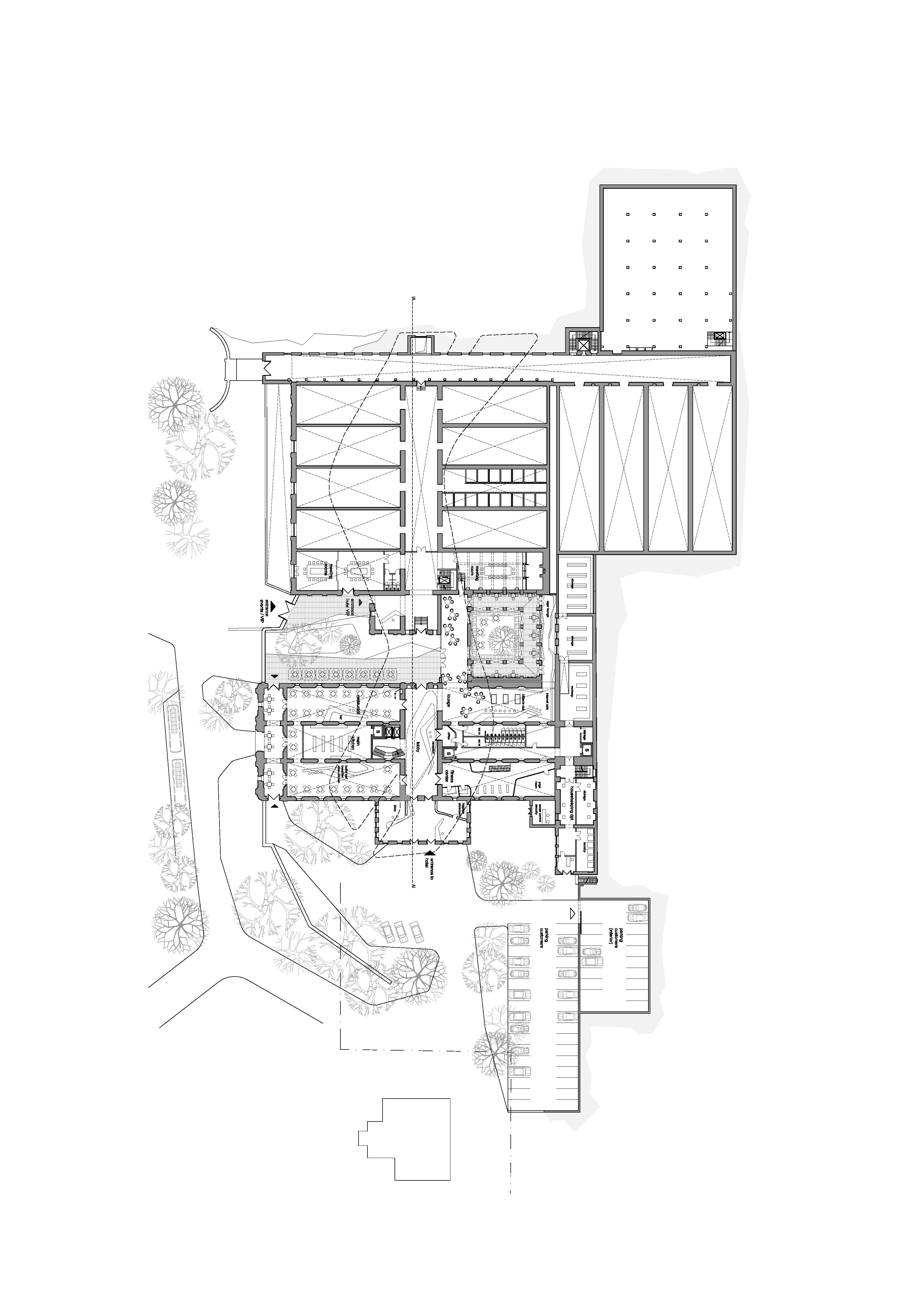
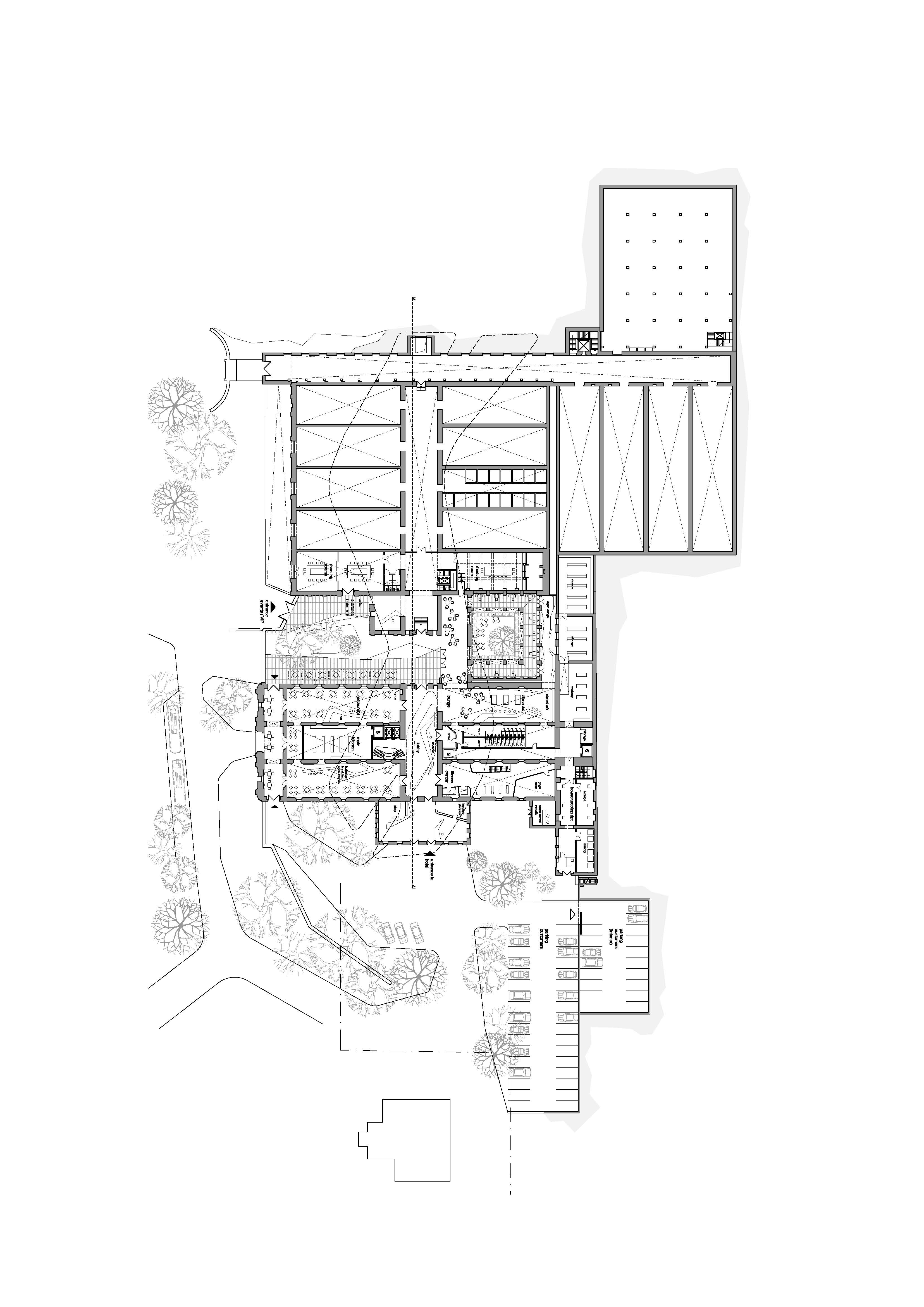
Die repräsentativen Bereiche des Hotels sind im ehemaligen Fabrikgebäude untergebracht, wo Rezeption, Gästebereich und Konferenzräume die großzügigen historischen Proportionen optimal nutzen. Restaurant und Lounge-Bar gruppieren sich um zwei Innenhöfe, die so gestaltet werden, dass sie sich harmonisch in die angrenzende Parklandschaft einfügen. Restaurant und Konferenzräume sind unterteilbar und von außen direkt zugänglich und können daher unabhängig vom Hotel betrieben werden. Eine Veranda verbindet alle Bereiche und ermöglicht maximale Flexibilität bei der Ausrichtung von Veranstaltungen, Hochzeiten, Konferenzen etc.
Die neu hinzugefügten Unterkünfte befinden sich auf diesem öffentlich zugänglichen Sockelbau. Jedes Zimmer ist so gestaltet, dass es eine besondere Verbindung zwischen privatem, persönlichem Raum und der Weite der Natur herstellt und höchsten Komfort und modernes Design bietet. Obwohl sich das Gebäude frei über den Höhlen erhebt, spiegelt seine Tragkonstruktion das bestehende Gewölberaster des Hotelgebäudes wider, um ein ausgewogenes Verhältnis von Qualität und Kosten zu gewährleisten.

Die Spa-Einrichtungen im Innenbereich nutzen die weitläufigen, stimmungsvollen Kellerräume und schaffen so ein einzigartiges Ambiente. Der Außenpool auf dem Dach bietet mit seiner sonnigen Lage inmitten der Natur ein unvergleichliches Entspannungserlebnis. Beide Bereiche sind über einen Aufzug im 2. Obergeschoss und im Untergeschoss miteinander verbunden. Die Lage der Poolterrasse bietet sowohl den Hotelgästen als auch den Besuchern des wunderschön renovierten Parks von Tsinandali Privatsphäre.
Zwei der Gewölbe im Keller beherbergen die historische Flaschensammlung und eine Weinprobe. Dort werden die alten Methoden der Weinherstellung und -lagerung sowie die Geschichte von Tsinandali präsentiert. Gäste haben die Möglichkeit, die Weine des Weinguts zu verkosten und zu vergleichen.

Die Betriebsräume sind in zwei separate Bereiche gegliedert: Lebensmittellager und technische Anlagen befinden sich unter der Hauptküche, Verwaltung und Wäscherei im hinteren Bereich. Die zukünftige Weinproduktion ließe sich problemlos in den bestehenden Ostflügeln der Gewölbe integrieren. Die geplante Anordnung ermöglicht einen flexiblen Zugang sowohl vom Hotel als auch vom Weinmuseum.
Die Revitalisierung des Tsinandali erzählt eine neue Geschichte für den Ort: Sanfte, elegante und organische Formen stehen in einem subtilen Zusammenspiel mit der charismatischen bestehenden Struktur, hauchen den alten Steinen neues Leben ein und bieten den Gästen eine vielfältige und anregende Erlebniswelt.