



2008 Interior Design Awards, Best of Year Finalist
2008 Gold Key Awards Best Hotel Design and Best Guest Room
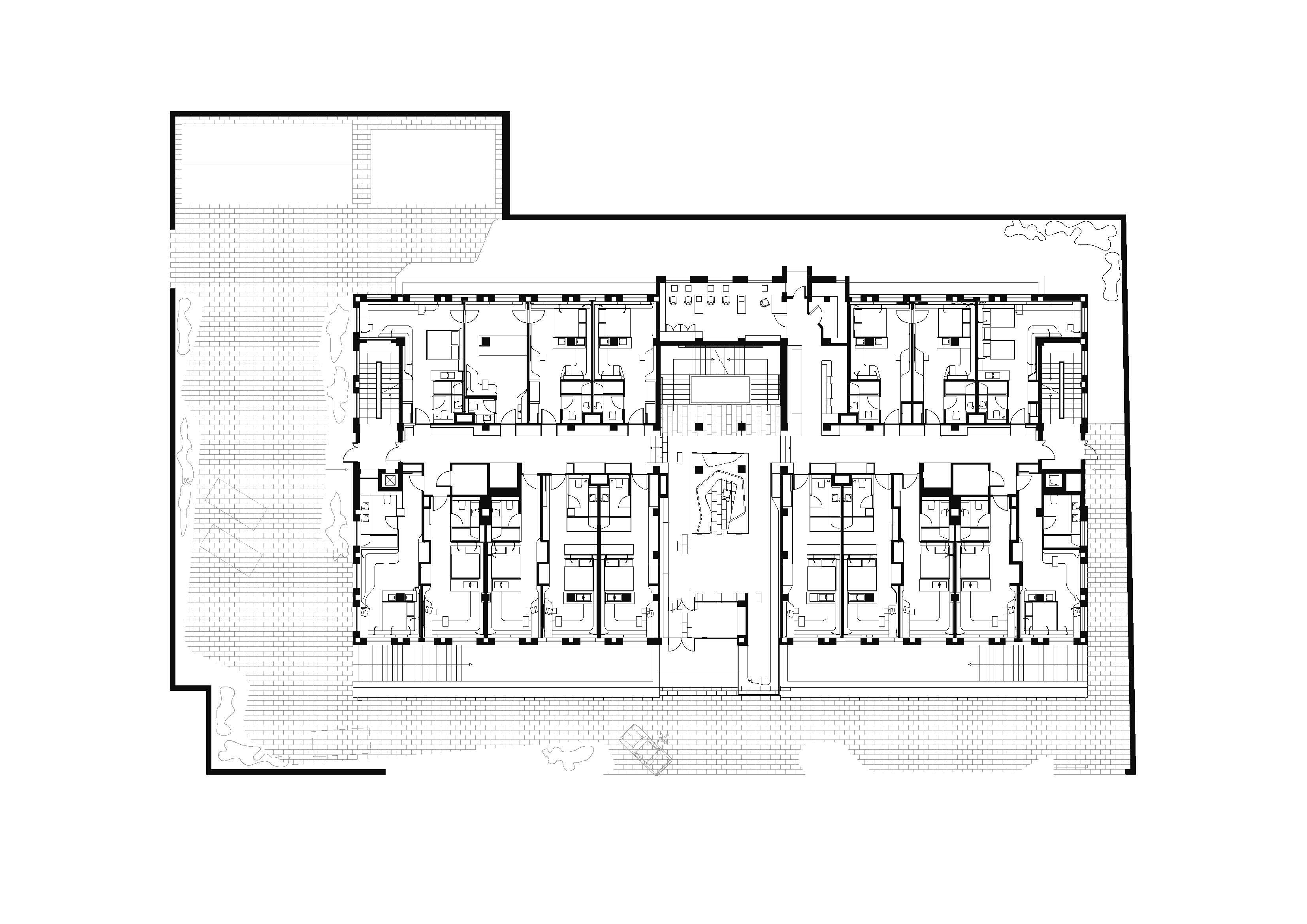
Mitten im historischen Zentrum Pekings liegt das Emperor Hotel an der ersten baumgesäumten Allee auf der Ostseite der Verbotenen Stadt, direkt neben dem majestätischen "Ning He"-Tempel aus der Qing-Dynastie. Das bestehende Gebäudeinnere wurde vor der Errichtung des Hotels bis auf den nackten Beton entkernt. Auf dieser Grundlage entstanden 60 Zimmer, ein Restaurant und eine Lounge sowie eine spektakuläre Dachterrasse auf einer Fläche von 4800 m².


Die konzeptionelle Genese der Neugestaltung basiert auf der Betrachtung des Volumens des bestehenden Gebäudes als "weiße Masse", in die die Räume und Flure eingeschnitten wurden. Nach dem ersten "groben Schnitt", der die Haupträume unterteilte, wurde eine Linie aus farbigem Wildleder eingefügt. Diese kombiniert eine Vielzahl von architektonischen Elementen, während man sich durch das gesamte Gebäude bewegt, und verbindet die Elemente darin in einer architektonischen Sprache.


In der Lobby entwickelt sich die Linie in ein verlängertes Sofa, das in den Eingangsbereich hineinragt, auf dem die Gäste verweilen können. Von hier aus schwingt sie sich die Wände hinauf, um Displays für lokale Nachrichten und Stadtinformationen zu rahmen.




Tina Troester, Keizo Okamoto, Crystal K H Tang, Wei Xin, Sun Da Yong, Ruan Jin, Anne Pestel, Li Mei(Graphic Design)