



The Family House is a charity that provides space and a home for families whose hospitalized children are in the process of receiving medical treatment. The house, a dynamic bending structure, finds its resting position on top of a small hill in the surrounding topography.

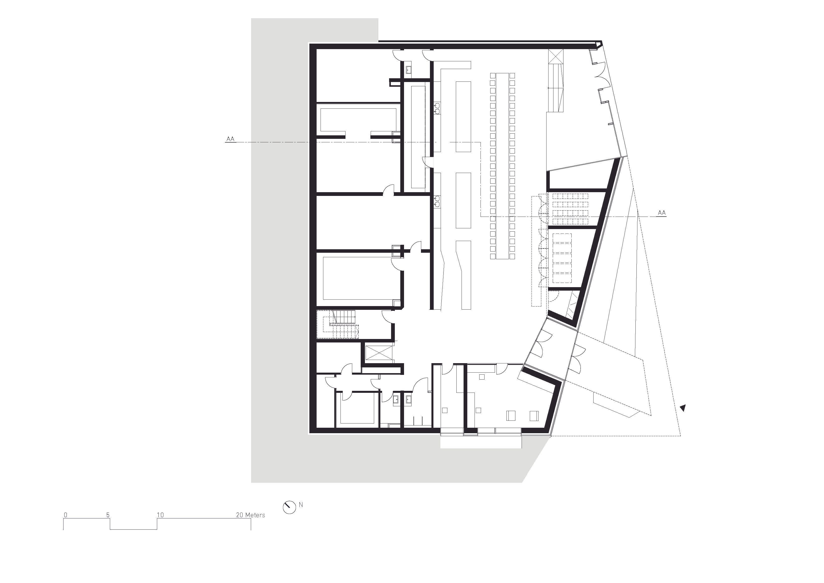
On the ground floor, a long table in the center of the public area serves as a joint space for the entire house. It is here that parents have the opportunity to engage in conversation with each other while preparing meals together, creating a reciprocal sense of support and understanding.
An elongated interactive ramp in the central area connects the interior communal spaces to a large outdoor terrace and serves multiple communal uses. It can be a landscape with spaces for sitting and lying down, a playground for children, a performance stage, as well as a quiet area for parents to work.
Each room enjoys spectacular views over the fields of Sankt Augustin, and all 25 apartments face the setting sun. Custom-made furniture is integrated into the window frame of every room.





The entire structure is more of an iconographic building sculpture than a conventional guest house, and the lightness of the gesture serves as an expression of hope and confidence in difficult times.
Stefanie Götz, Raphael Hemmer