



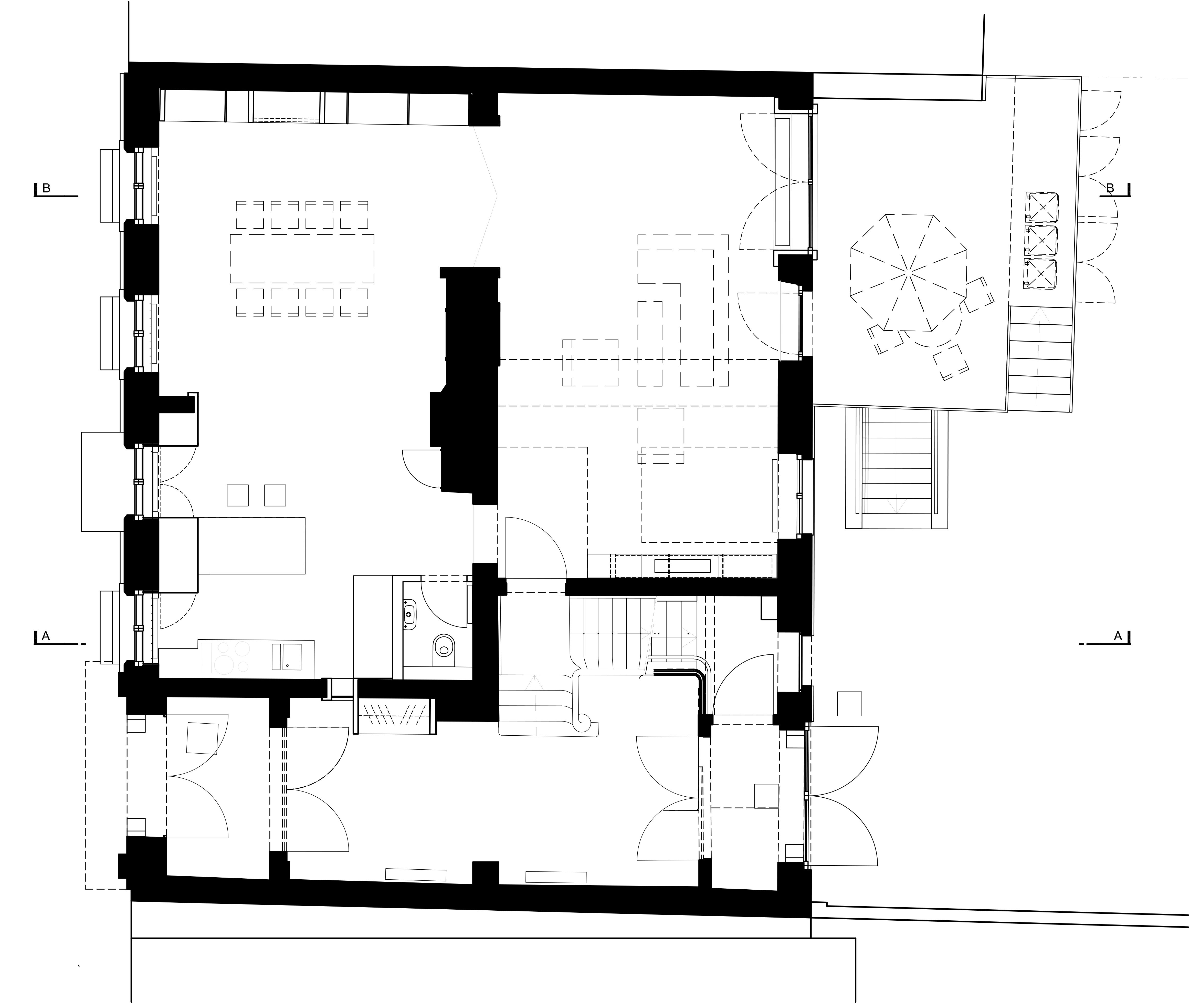
GRAFT entwarf und plante die Restaurierung eins denkmalgeschützten Barockpalais in Berlin Mitte. Die Innenarchitektur basiert auf einem mnemonischen Konzept, in dem sich Teilzitate moderner Architekturapplikationen respektvoll in die denkmalgeschützte Bausubstanz einfügen.

Dieser narrative Prozess durchläuft sämtliche Räume und bildet sich in einer immer gleichen metallischen Materialität weiter aus. Weitere Ausbauten im Inneren wurden in Lehmbau realisiert als moderne Reaktion auf den historischen Kalkputz. Die moderne Ergänzung findet sich in vielen Miniaturen wieder und kulminiert in einem komplett modernen Dachausbau.
Das Einfamilienhaus bietet aber auch gerade dank historischer Fundstücke und Spolien eine spannende Raumerfahrung, in der die denkmalgeschützte Bausubstanz als kodierte Erinnerungsspur einen Rahmen bildet.






Die gemeinschaftlichen Bereiche sind maximal flexibel und offen gestaltet. Im Dachausbau befindet sich ein Home Office sowie ein Guest Apartment. Zum Garten hin öffnet sich die hintere Fassade großzügig in den privaten Außenbereich.