


GRAFT wurde beauftragt, den Umbau einer ehemaligen Präsidentenvilla in Wien für einen privaten Kunstsammler zu gestalten. Das Zusammenführen der Kunstsammlung und des Altbaus mit neuen Motiven und Materialien stand hierbei im Vordergrund. Dementsprechend wurden ausgewählte Kunstwerke sowie das vorgefundene Dekor in eine neue formale DNA überführt, welche vorwiegend auf reflektierenden Oberflächenphänomenen aufbaut. Diese bilden ein neues, einzigartiges Raumgefüge, das zwischen Tradition, Kunst und neuer Raumwahrnehmung oszilliert.

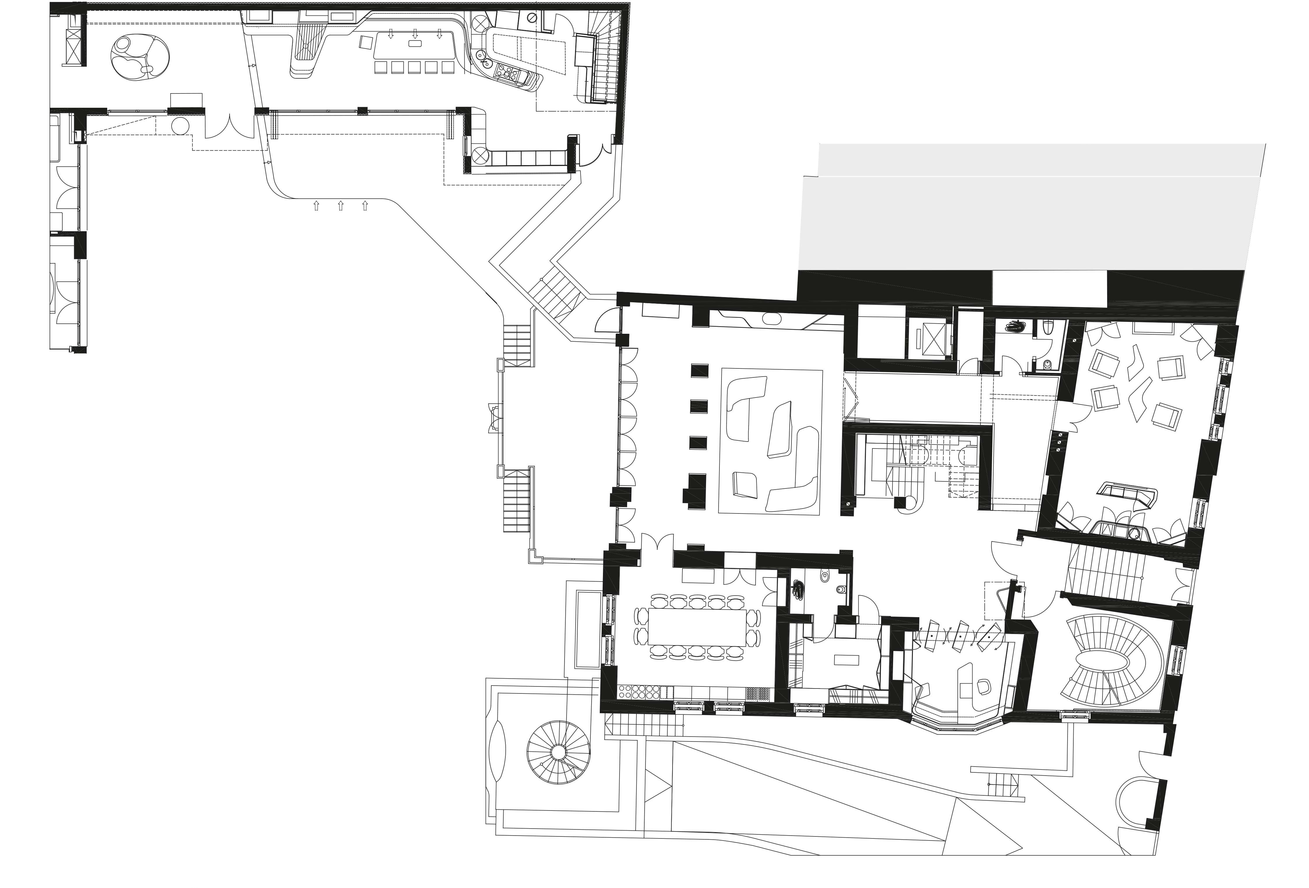
Der klassische Grundrisstypus der Villa, der sich durch die getrennten Funktionseinheiten Vestibül, Salon und Loggia auszeichnet, wird in ein Raumkontinuum überführt: es entsteht eine Architekturpromenade – szenografisch verbunden durch die Kunstwerke. Die einzelnen Bereiche können jedoch mithilfe von Schiebewänden auch getrennt bespielt werden. Um eine alte Treppe herum ordnen sich Foyer, Wohnraum und ein Galeriegang an, der primär in Weiß und Sandstein gehalten ist. Die Treppe wurde zur Bibliothek ausgebaut.
Die Konnotationen aller historischen Motive werden in die neue Raumordnung übersetzt und ordnen sich dem Ausstellungsgedanken unter. Dieser wird allerdings durch neue Maßnahmen herausgefordert: Der Galeriegang ist auf beiden Seiten verspiegelt und mit einer frei bespielbaren Lichtdecke versehen – dadurch multipliziert sich die ausgestellte Kunst ins Vielfache, ins Polychrome.


Das Spiegelmotiv setzt sich auch an anderer Stelle fort: sowohl die Garderobe als auch die Gästetoilette verbergen sich hinter Spiegelflächen. In der Gästetoilette handelt es sich um einen venezianischen Spiegel, der den Blick ins Foyer erlaubt, ohne selbst gesehen zu werden. Auf diese Weise entsteht ein voyeuristischer Effekt mit vertauschter Sehrichtung. Die Verbindung zwischen Wohnraum und ehemaliger Loggia wird ebenfalls durch Spiegel erweitert und leitet so Licht in die Tiefe des Gebäudevolumens.
Die Loggia verfügt über ein Seitenlicht und beherbergt hauptsächlich Skulpturen und dreidimensionale Kunstobjekte. Angeschlossen an diese Kunstpromenade eröffnen sich weitere Räume, darunter das Esszimmer und der Salon. Auch hier setzt sich das Spiel aus hellen Oberflächen, dunklen Holzmöbel und Spiegeln fort. Der Durchgang, der die Räume verbindet, ist auf beiden Seiten mit halbdurchlässigen Spiegeln begrenzt, die jeweils Einblick aber dennoch keinen Durchblick gewähren, solange der Lichtwert der Vitrine heller ist, als der der Zimmer. Gleichsam spiegelt sich das Altsilber so ins Unendliche – Pistoletto lässt grüßen.
Im Salon, in dem die weißen Wände und Böden durch schwarzen Tapetenflies kontrastiert werden, ist der Fernseher in eine mit magic mirrors verspiegelte Bar integriert. Die Orangerie schließlich wird dominiert von einer Küchenskulptur, deren geschwungene Form aus dunklem Wenge-Holz gebaut wurde. Deren Gestaltung setzt sich im Essbereich in Form eines individuell entworfenen Esstischs und Grillkamins fort. Die Kunstobjekte des Bauherrn wurden auch in diesem Bereich in den Entwurf integriert, die Kochkunst und der kulinarische Genuss mit Freunden übernehmen allerdings die Protagonistenrolle.

