




Leben und Arbeiten, Weitläufigkeit und Intimität. Flexibilität ist der Schlüsselbegriff im zeitgemäßen Loft Design. In dem hochverdichteten Berliner Gründerzeitviertel Prenzlauer Berg gelegen, öffnet sich das Loft über die Dachlandschaften des multikulturellen Kiezes.

Mit der Wiederherstellung des Dachgeschoßes eines Gründerzeithauses in Berlin startete dieses neue Abenteuer eines atypischen und sehr persönlichen Innenausbaus. Der klassisch hierarchische Grundriss wurde von ineinander fließenden Raumzonen und Kontrasten abgelöst. Hybride Zonen aus Schlafzimmer, Bad, Wohnzimmer und Küche wurden im Loft realisierbar. Die Badewanne wurde zum Bindeglied zwischen Wohn- und Schlafzimmer. Die individuelle Ausprägung des Lofts war vor allem von der Courage des Besitzers abhängig.
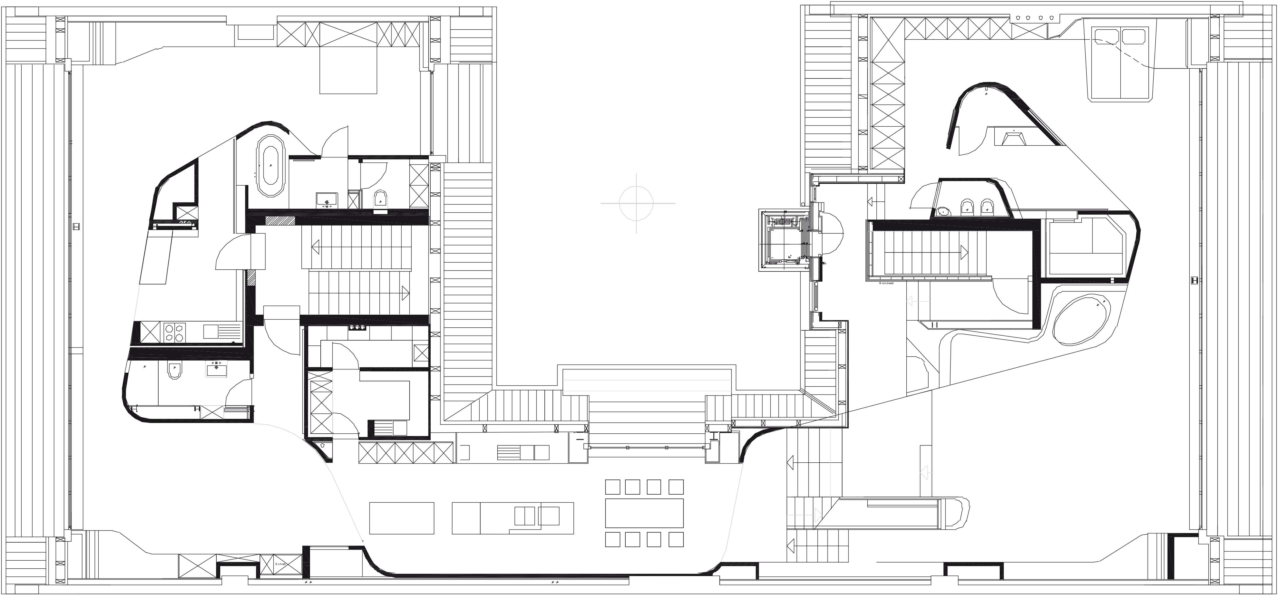
Ein offener, Loft-typischer Raum bleibt frei und nahezu unmöbliert. Alle intimeren Räume wie Badezimmer, Toiletten, Lagerräume und Loftzugänge wurden um die beiden Treppenhäuser positioniert.
Ein skulptural ausgebildetes Wandkontinuum umfasst diese Räume und durchdringt den gesamten C-förmigen Dachgrundriss. Kippende Wände dynamisieren den freien, über die Dachterrassen ins Unendliche laufende, offenen Raum. Runde Wandabschnitte weiten und verlängern den Zwischenraum und kreieren unterschiedliche Lebenszonen und akzentuieren Übergänge.



In einem zweiten Schritt schneiden sich Primärgeometrien in die Großstruktur. Unterstützt durch raumhohe Schiebetürelemente lassen sich rechtwinklige Raumzonen aus dem Raumkontinuum herausschneiden. Das Kontinuum wird zum Relikt in einem in sich geschlossenen Raum. Dieses Raumgefühl wird durch Oberflächenmaterialien und Farben unterstützt.
Aus diesen Maßnahmen heraus entstehen vielfältige Möglichkeiten und Kombinationen den Wohnraum sowohl „höhlenartig“ und geschützt, sowie einer Bühne gleich im offenen Grundriss zu erleben. Schlafzimmer und benachbarte Bäder können dadurch zu Suiten kombiniert werden. Der Loftbewohner kann sein Leben leicht ausbalancieren. Je nach Bedürfnis ist ein schneller Wechsel zwischen extrovertierter Galerie und introvertiertem Studio möglich.
Die Nord- und Südseite des Lofts sind zu zwei großen Terrassen hin vollverglast. Die beiden 13 m langen Glaselemente der Türen sind faltbar und vollständig zu öffnen. Einem Vorhang gleich geben sie ein spektakuläres Panorama über die Dächer von Berlin frei. Übertroffen werden kann dieser Ausblick nur von der Sichtweite, die der noch höher gelegene Dachgarten bietet.



