
Für den KfW-Campus, ein Kreativlabor, das sich den zukünftigen Anforderungen der KfW-Bank widmet, schlug GRAFT eine zweigeschossige Aufstockung des bisherigen Standortes in der Nähe des Gendarmenmarktes im Zentrum Berlins vor. Dieses neue Kreativlabor ist als klar erkennbarer, zugänglicher Ort der Inspiration innerhalb des Stadtblocks konzipiert.

Versteckt im Innenhof des Bestandsgebäudes bietet diese innovative Plattform einen weiten Blick über die Dächer Berlins und lässt Ideen und Inspiration freien Lauf.
Als Ausdruck der Unternehmenskultur der KfW entwickelte GRAFT ein Design, das offen, transparent und gleichzeitig funktional ist.
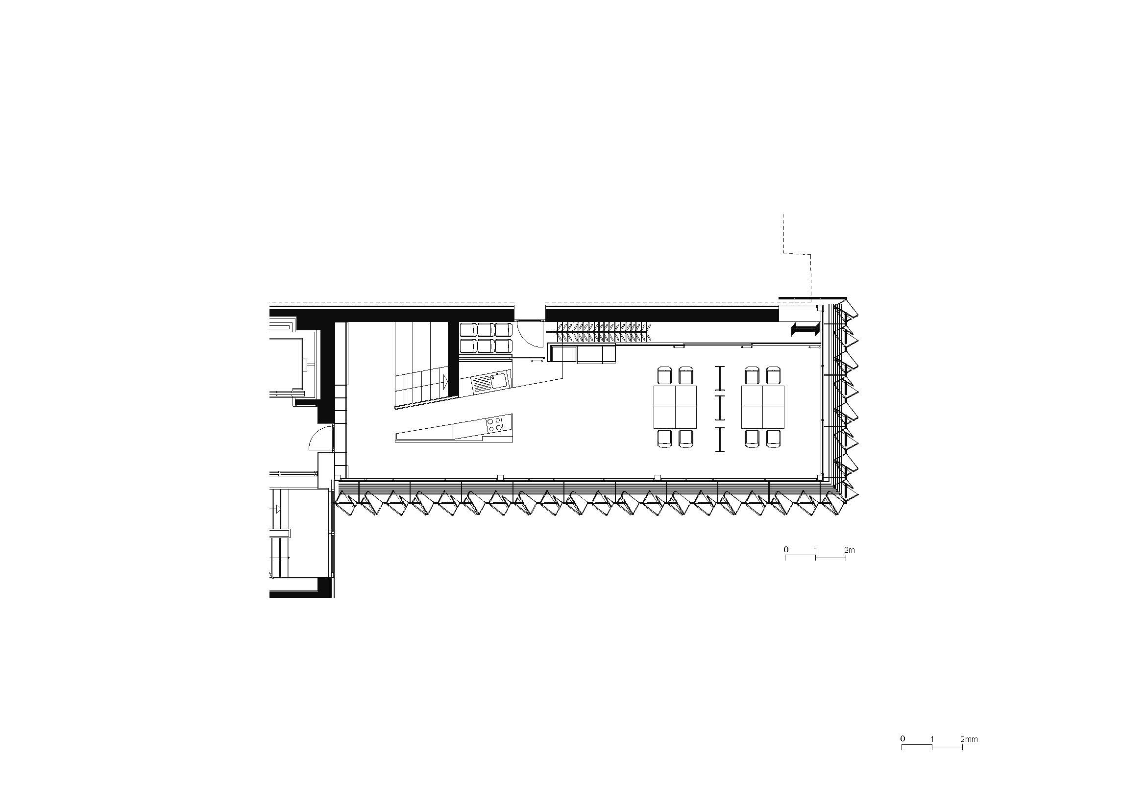
Der Entwurf von GRAFT sieht ein einfaches kubisches Volumen vor, das in zwei Stockwerke und eine Dachterrasse unterteilt ist. In der unteren Etage befinden sich eine Küche und eine Bar sowie ein flexibler multifunktionaler Raum, der je nach Verwendungszweck modifiziert werden kann - ob Ausstellungen, Lesungen, Workshops, kooperatives Arbeiten oder auch nur zur Entspannung. Durch die Verbreiterung der Treppe zum Obergeschoss wird der Raum in ein Mini-Auditorium verwandelt, während das oberste Stockwerk selbst, die bel étage, einen atemberaubenden Blick über Berlin bietet und eine Vielzahl von repräsentativen und funktionalen Nutzungen ermöglicht - mit Blick auf Schinkels Konzerthaus, den Französischen Dom, das Brandenburger Tor und andere ikonische Symbole der Stadt. Darüber wird eine Dachterrasse auch als Gemeinschaftsgarten dienen.





Besonderes Augenmerk wird auf die Fassade gelegt: Sie wird aus beweglichen Paneelen bestehen, die über beide Etagen hinweg individuell programmiert werden können und so auf den Sonnenstand und den Beschattungsbedarf reagieren können. Auf diese Weise kann der Wärmeeintrag und die daraus resultierende benötigte Kühl- oder Heizenergie deutlich reduziert werden. Die Fassade wird mit Hilfe von Photovoltaik und einem Solar-Tracking-System Strom erzeugen, das die Paneele kontinuierlich in die optimale Position zur Sonne ausrichtet und so die bestmögliche Effizienz garantiert.
Damit deckt der neue Anbau nicht nur seinen eigenen Energiebedarf, sondern trägt auch zur Gesamtenergiebilanz des gesamten Komplexes bei. Durch die adaptive Fassade verändert sich das Erscheinungsbild des Kreativlabors je nach Tageszeit und zugeschriebener Nutzung, schafft eine Art visuelle Erzählung und wird zum gebauten Symbol für die Unternehmensphilosophie der KfW.