





iF Design Award 2023: Winner, BIG SEE Archiecture Award 2023: Winner, Heinze ArchitekturAWARD 2022: Shortlist, polis AWARD 2022: 2. Platz, BDA PREIS BERLIN 2021: Lobende Erwähnung, FIABCI Prix d’Excellence Germany 2021: Gold, Wohnbauten des Jahres 2021: Auszeichnung, DAM Preis 2022: Longlist, Rethinking the Future Awards 2021: First Award
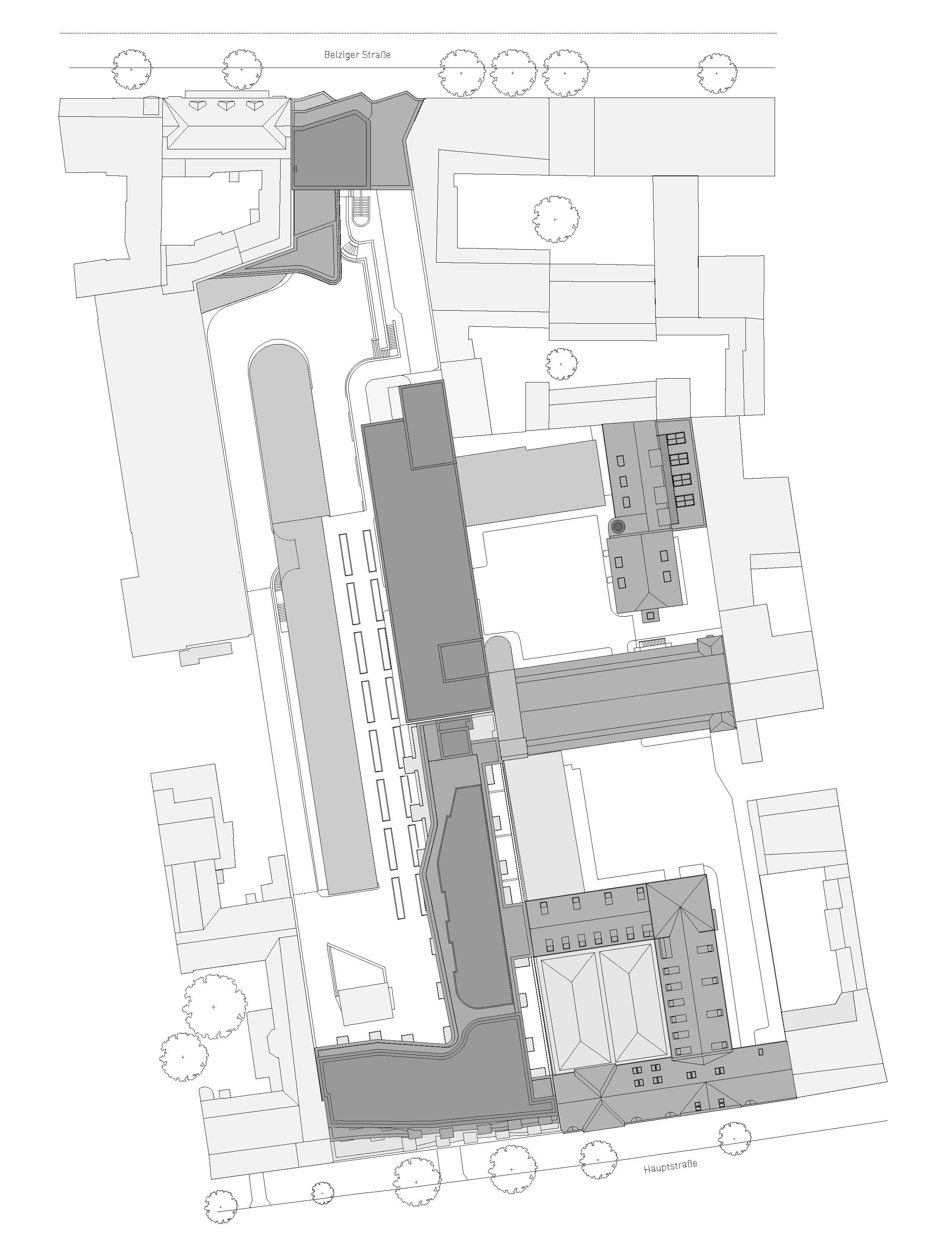
An der Hauptstraße in Berlin Schöneberg wurde das historische Postgelände durch GRAFT revitalisiert, mit zwei Neubauten erweitert und die ehemaligen Dächer für die gewerbliche Nutzung aktiviert. So entstand auf 32.000 m² ein modernes, der Öffentlichkeit zugängliches Ensemble mit Büros, Restaurants, Geschäften und Wohnungen.
Das Gebiet rund um den Gebäudekomplex gehört zu den beliebtesten Wohngegenden der Stadt und bietet Restaurants und Geschäfte, sowie Grünflächen in fußläufiger Entfernung. Die Hauptstraße verbindet den Berliner Südwesten mit dem Zentrum der Stadt und erfreut sich auch deshalb großer Beliebtheit.


Die denkmalgeschützten Gebäude des Postgeländes verteilen sich auf rund 11.700 m². Die Bestandsgebäude gliedern die Fläche in mehrere Innenhöfe, die eine Aufwertung erfuhren, dabei jedoch ihren ursprünglichen Gewerbehof-Charakter beibehalten.
Die verschiedenen Gebäude zeichnen sich durch ihren jeweiligen individuellen Charakter aus, der aus der Entstehung der Gebäude in verschiedenen Jahrzehnten resultiert. Im Einklang mit der bestehenden Gebäudestruktur wurden die bisher ungenutzten Dächer nach historischem Vorbild und entsprechend der Denkmalschutzbestimmungen nach Entwürfen von GRAFT saniert.

Die Dächer wurden mit zusätzlichen Fenstern ausgestattet, während die Giebel der Dächer sichtbar bleiben und dem Innenraum so eine gemütliche Atmosphäre verleihen. Alle Gewerbeeinheiten wurden barrierefrei realisiert. Die Eingriffe in die denkmalgeschützte Struktur der Dächer dienen der Erhaltung des Gebäudes und der weiteren Nutzung des für den Berliner Kiez identitätsstiftenden Gebäudes.
Um sich in das bestehende Ensemble einzufügen, erhielten auch die Neubauten Ziegelfassaden, sodass die Tradition der denkmalgeschützten Flächen durch die Revitalisierung behutsam aufgenommen und fortgeführt wird. In Anlehnung an die historischen Hofdurchfahrten erhielt das Gebäude einen großzügigen Durchgang von der Hauptstraße in den Hof. Mit modernsten technischen Hilfsmitteln wurden hier Ziegel und Geometrie, Denkmal und die parametrischen Entwurfsstrategien des 21. Jahrhundert gestalterisch zusammengeführt.






Aleksandra Zajko, Alexandra Bunescu, Alfredo Peñafiel Suarez, Allison Weiler, Andrei Dan Musetescu, Anja Frenkel, Anna Wittwer, Dorothea von Rotberg, Emma Rytoft, Evgenia Dimopoulou, Fabian Busse, Inigo De Latorre, Jerzy Gabriel, Maria Angeles Orduna, Marvin Bratke, Mathilde Catros, Mats Karl Koppe, Nils von Minckwitz, Paula Martin Aedo, Primoz Strazar, Sebastian Gernhardt, Sven Wesuls, Verena Lihl, Veronika Partelova